Get discounts,
promos, see our
newest plans
and more!
+ 15% off any plan
See terms opt out anytime


No Thanks

Thanks for
signing up!


Use Code:

SIGNUP15

And save 15% off any plan!

Check your email for details.

CLOSE
Search Plans
Customer Reviews
     
20% off ALL House Plans Sitewide
20% off ALL House Plans Sitewide
20% off ALL House Plans Sitewide

Code: SAVE20
Sale ends midnight 3/29/2026 PST
BACK TO PLAN

Customize Your House Plans

An affordable way to modify your dream home!

Step 1

Find a house plan that's almost perfect!


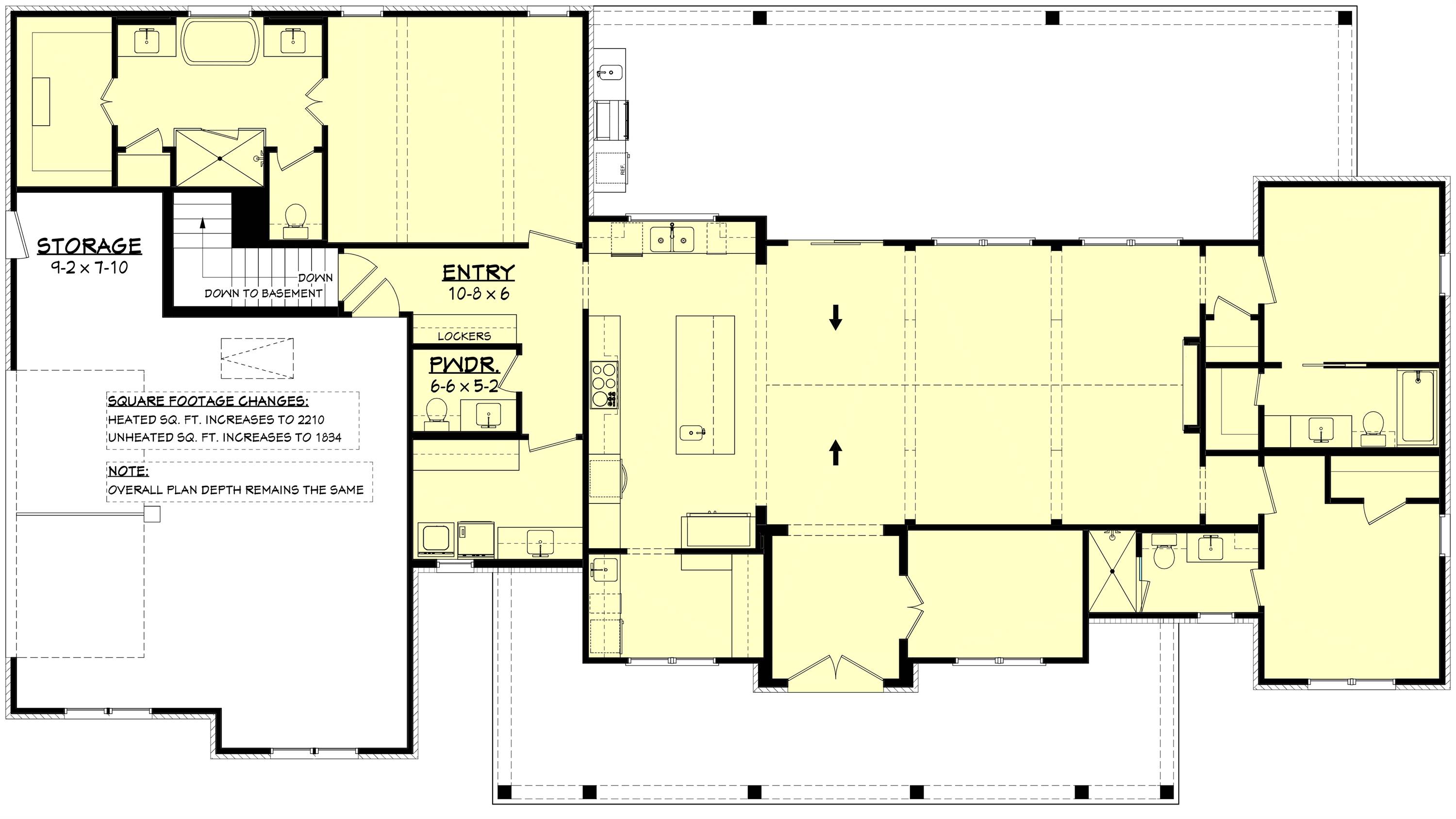
Plan THD-12299
Heated Area: 3934 Sq. Ft.
View Floor Plans
Helpful tips for your modification:

Please be as specific as possible. Instead of indicating you want a larger bedroom and a bigger porch, be specific. Tell us how many feet you want added in width and/or length. For example, "I want to increase the master suite to 16' X 14'. Or I want to add 4 extra feet to the entire back of the house.

Size Increase If requesting additional square footage in your modification request, please indicate the specific size increase and the direction (front, left, rear, right) desired.

Adding rooms. If you're adding rooms, please indicate desired location and size.

Exterior changes. For changes to porches and decks, indicate your size preference and if you want the space covered or uncovered.

We love sketches! We love sketches! It's not required, but you can print the floor plans, indicate the changes you want, scan and email them to us.

Helpful information. Learn more about house plan modifications by reading this article.

Please Note: Modification Estimates are valid for 30 days.

Important Information

All of our house plans are designed to include the necessary information you need to build your new home. Please note our plans will not include an architectural or engineering stamp. Some areas will require additional information and/or engineering that can be completed by a local, licensed professional or engineer. We recommend contacting your local building department to find out the requirements specific to your county. We also recommend carefully considering the modification team you choose to hire to modify your house plans. A good start is discussing your plan changes with the mod supplier, checking online reviews, and making sure the timeline set by the modification team meets your requirements.

If you need assistance with your modifications, please email, live chat or call (866) 214-2242 and a home plan specialist would be happy to assist you.



  1st Floor:

  Basement Stair Location:
Step 2

Fill out this form and receive a free modification estimate within 1-2 business days!

   For Plan: THD-12299
Foundation
   
Framing
   
Do you have a builder?
 
Do you have an anticipated start date?
Do you already own your building lot?
 
I’m a Builder
 
Requested Changes   (See floor plan below)