Get discounts,
promos, see our
newest plans
and more!
+ 15% off any plan
See terms opt out anytime


No Thanks

Thanks for
signing up!


Use Code:

SIGNUP15

And save 15% off any plan!

Check your email for details.

CLOSE
Search Plans
Customer Reviews
     
20% off ALL House Plans Sitewide
20% off ALL House Plans Sitewide
20% off ALL House Plans Sitewide

Code: SAVE20
Sale ends midnight 3/29/2026 PST

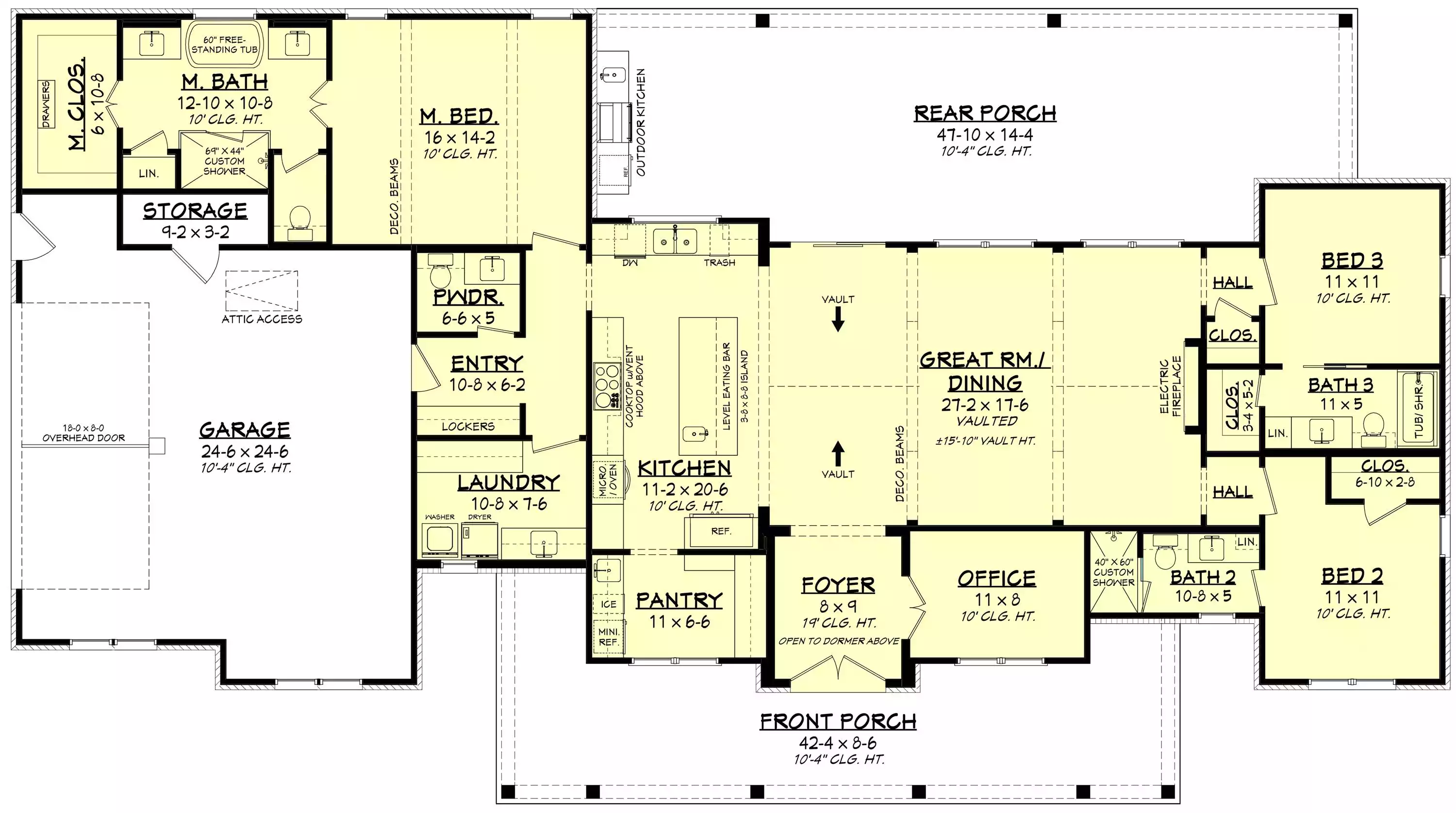
Ashenvale Rise | 3 Bedroom Farmhouse Style House, Plan 12299

 
 

Sq Ft
2,191 FT²

Beds
3

Baths
3.5

Stories
1

Garage
2

Depth
49' 4"

Width
89' 10"
On Sale
$1,156.00
$1,445.00
© copyright by designer
 View All 15 Images | Photographs may reflect modified home
Sq Ft
2,191 FT²
Beds
3
Baths
3.5
Stories
1
Garage
2
Depth
49' 4"
Width
89' 10"
 
Click to Zoom In on Floor Plan
© copyright by designer
 
 

About This Plan

This thoughtfully designed home offers 2191 square feet of heated living space with 3 bedrooms and 3.5 baths arranged for comfort and entertaining. The open floor plan centers around a vaulted great room with fireplace, creating a bright and inviting focal point for everyday living. The L-shaped kitchen features a large island, peninsula eating bar, and butler’s pantry to provide generous workspace and storage. A main-level primary suite offers a peaceful retreat with a walk-in closet and a private bath complete with double vanity, separate tub, and shower. Split bedrooms enhance privacy while keeping the layout functional and connected. A dedicated home office, mud room, and first-floor laundry add convenience to daily routines. Expansive covered front and rear porches, along with an outdoor kitchen and outdoor living space, extend the home’s comfort outdoors and make it ideal for gathering year-round. 

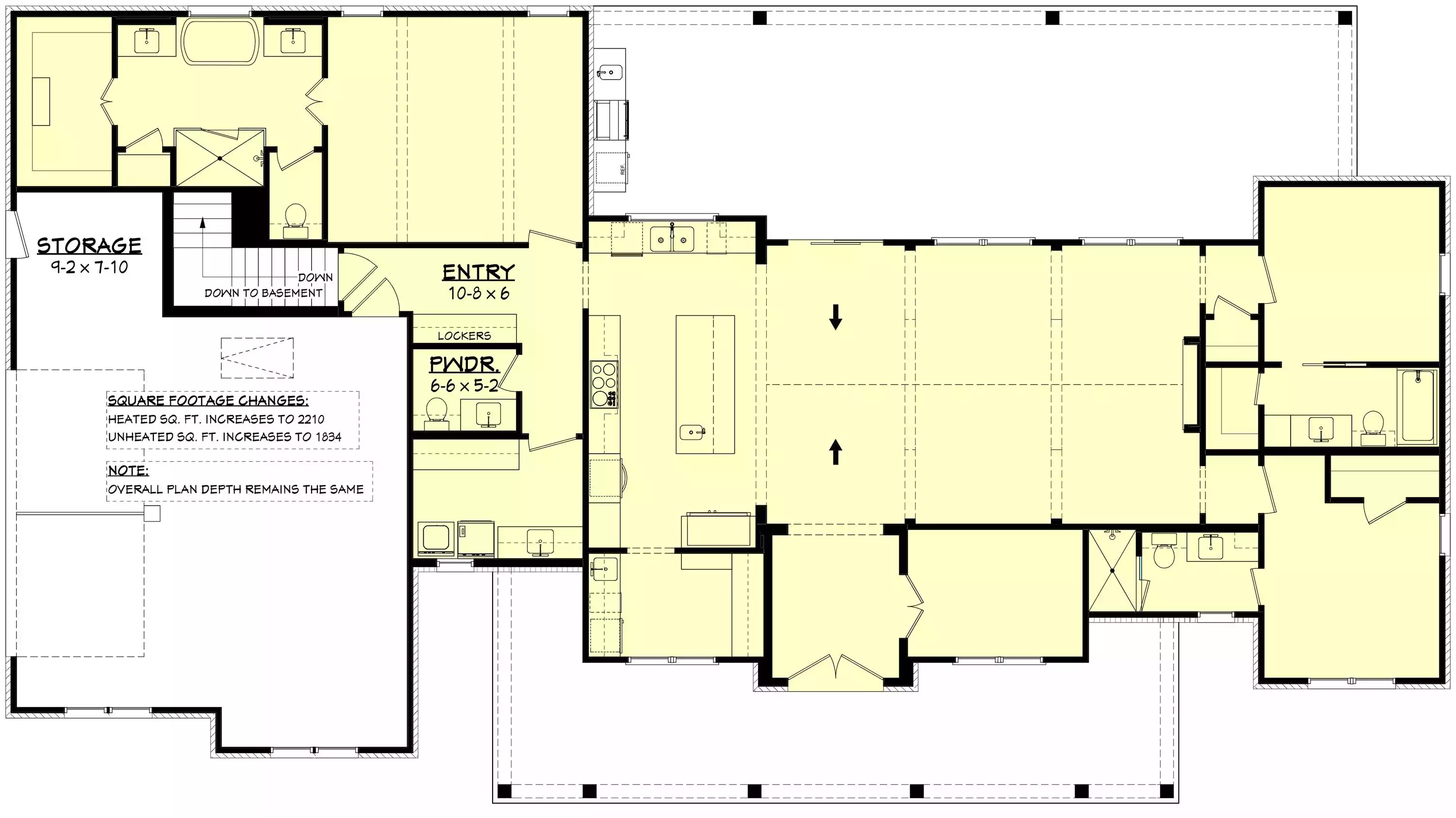
See All Plan Options
 

FEATURES & DETAILS

Kitchen features
Butler's Pantry
Kitchen Island
L-Shaped
Peninsula / Eating Bar
Bedroom features
Double Vanity Sink
Primary Bdrm Main Floor
Separate Tub and Shower
Split Bedrooms
Walk-in Closet
Exterior features
Covered Front Porch
Covered Rear Porch
Outdoor Kitchen
Outdoor Living Space
Lot Options
Suited for corner lot
Additional features
Dining Room
Fireplace
Foyer
Great Room
Home Office
Laundry 1st Fl
Mud Room
Open Floor Plan
Storage Space
Vaulted Great Room/Living
Garage Location
Front
Garage Options
Attached
Side-entry
3,934 Ft
2
Total Structure
2,191 Ft
2
Total Heated
3
Bedrooms
3.5
Bathrooms
2
Garage
1
Stories
89' 10"
Width
49' 4"
Depth
26' 7"
Height
10' 0"
Main Floor Ceiling
2x4
Framing
Stick
Roof Framing
8/12
Primary Roof Pitch
12/12
Secondary Roof Pitch
Single
Dwelling Number

Unheated Living Space
671 Ft
2
Garage
33 Ft
2
Storage
1,039 Ft
2
Porch
392 Ft
2
Front Porch
647 Ft
2
Rear Porch
 

Plan Package Options

 Select Plan Package
 Need To Reverse Plan? (Optional)
  Select Foundation Option
  Add-Ons (Optional)
INCLUDED WITH YOUR PURCHASE

Free Ground shipping in the U.S.

FREE

Home Building & Product Ideas Organizer

Sub Total
$0
Free Shipping
QUESTIONS OR NEED HELP ORDERING? LIVE CHAT OR CALL US AT 866-214-2242
Plan Packages

Each set of construction documents includes detailed, dimensioned floor plans, basic electric layouts, cross sections, roof details, cabinet layouts and elevations, as well as general IRC specifications. They contain virtually all of the information required to construct your home. The typical plan set does not include any plumbing, HVAC drawings, or engineering stamps due to the wide variety of specific needs, local codes, and climatic conditions. These details and specifications are easily obtained from your builder, contractors, and/or local engineers.

BEST PRICE GUARANTEE

Find the same house plan (modifications included!) and package for less on another site, show us the URL and we'll give you the difference plus an additional 10% back.

100% SATISFACTION GUARANTEE

We offer a one-time, 30-day exchange policy for unused, printed plan packages in the event you aren't satisfied with your first selection.

 
 

Plan 12299  Back to plan page

Loading...